6007
6021
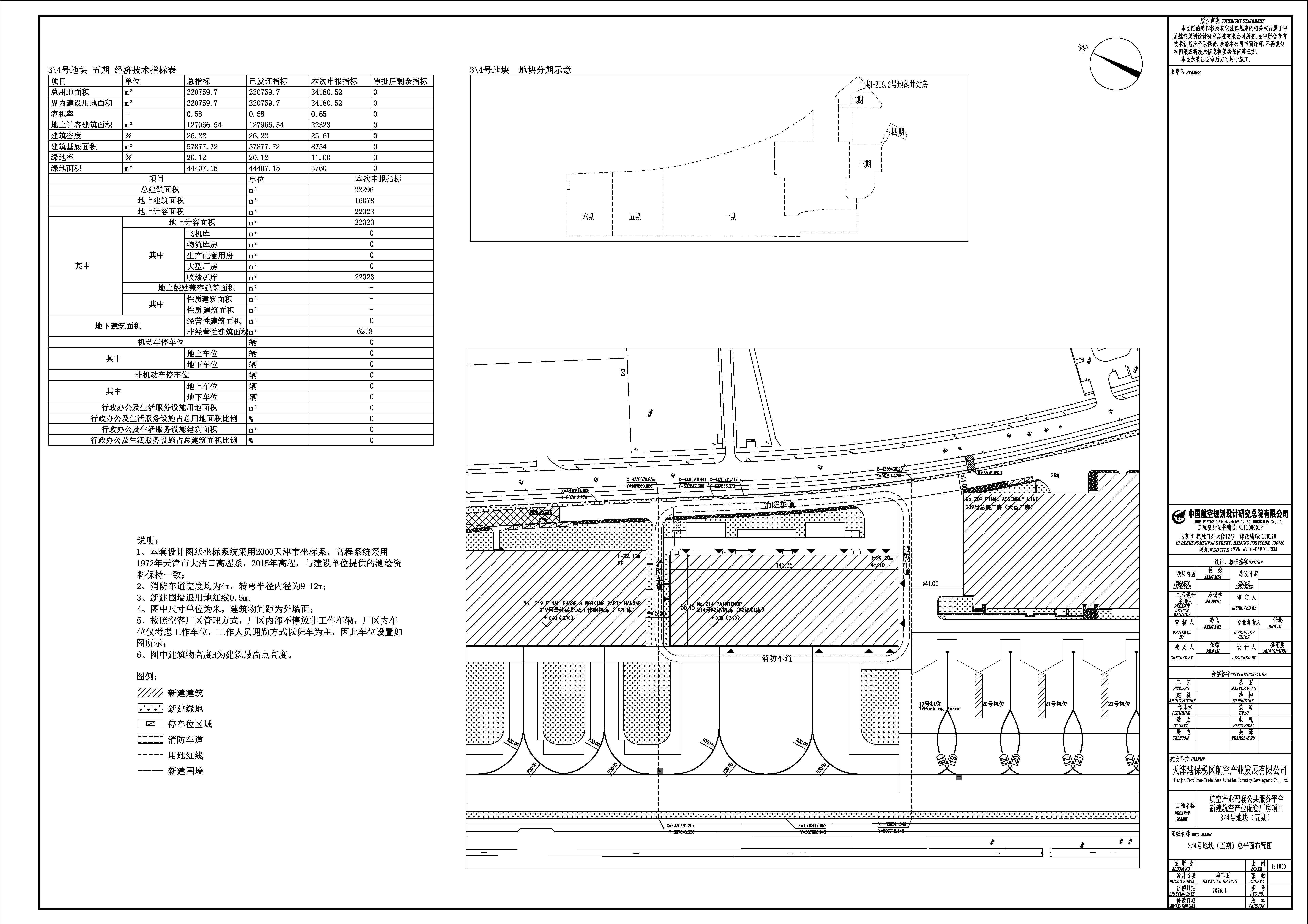
航空产业配套公共服务平台新建航空产业配套厂房项目3/4号地块(五期)建筑设计方案调整总平图进行公示
航空产业配套公共服务平台新建航空产业配套厂房项目3/4号地块(五期)建筑设计方案调整总平图进行公示
依据《中华人民共和国城乡规划法》和建设部《关于城乡规划公开公示的规定》等相关规定要求,现将航空产业配套公共服务平台新建航空产业配套厂房项目3/4号地块(五期)建筑设计方案调整总平图进行公示,公示期为7个工作日。
意见反馈请回复天津港保税区规划国土和建设交通局规划科,联系电话:022- 66619879。征求意见时间为7个工作日,逾期视为无意见。
(公示图详见附件)
扫一扫在手机打开当前页
注:天津港保税区政府网站(www.tjftz.gov.cn)所有政务信息均为受权发布。按照《互联网新闻信息服务管理规定》,互联网新闻信息服务提供者转载我区政府网站相关信息时,须注明信息来源,不得歪曲、篡改标题原意及信息内容。
返回顶部
checktaskdate=&unchecktaskdate=&titleformatstring=False_False_False_&oldcontentid=&Check_IsAdmin=True&Check_UserName=gjj_check&Check_CheckDate=2026/1/21 15:00:48&Check_Reasons=
/contents/6021/378183.html
举报电话:022-84906623
举报邮箱:tjftz@adm.tjftz.gov.cn
举报受理时间:9:00-11:30 14:30-17:30(工作日)